Home

Contact
Us



1219 Madison

107 Clarke

209 Roosevelt

228 Cambridge

249 Roosevelt

748 S Beech

1633 E Genesee

731 Livingston

733 Livingston

123 Cambridge

125 Cambridge

128 Cambridge

143 Miles

145 Miles

184 Fellows

186 Fellows

1120 Colvin Lower

1120 Colvin Upper


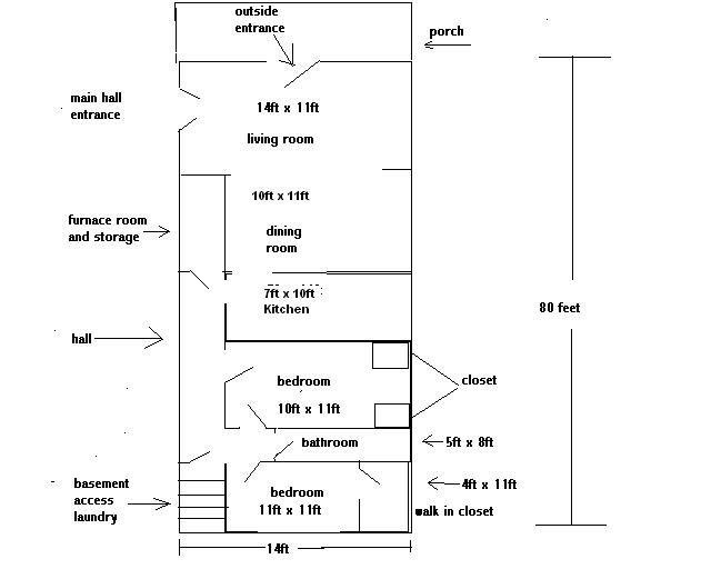
Rent: $1050.00           .................                                                        Apartment Available: June 1st 2027

Madison Apartment #1

@2 BEDROOM APARTMENTegio

n

 

Click to download Madison Lease

Return to Home page